Projects
Contact Us
VA ARTS
Projects
Contact Us
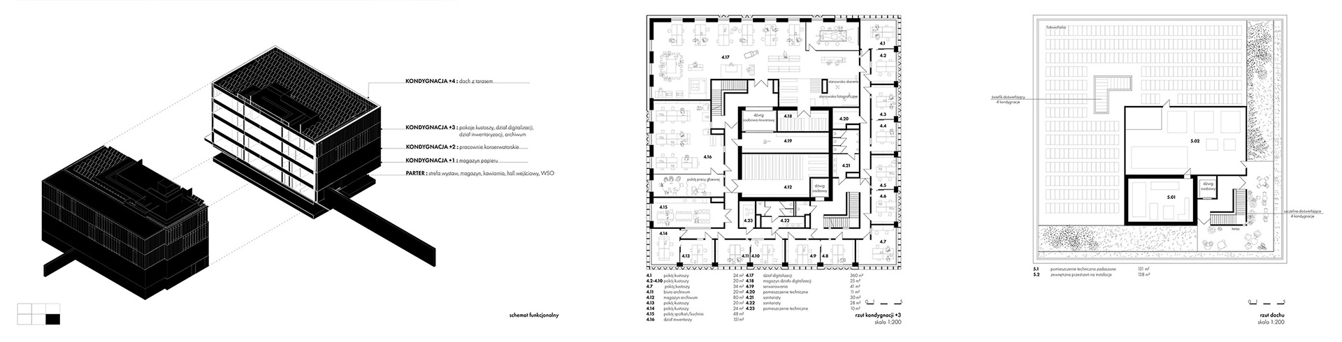
Architectural Competition: "Extension of the National Museum in Warsaw"
Architects: APA Wojciechowski
Poland, Warsaw
2022
↑
Back to Top