Projects
Contact Us
VA ARTS
Projects
Contact Us
I AWARD
in the Architectural Competition:
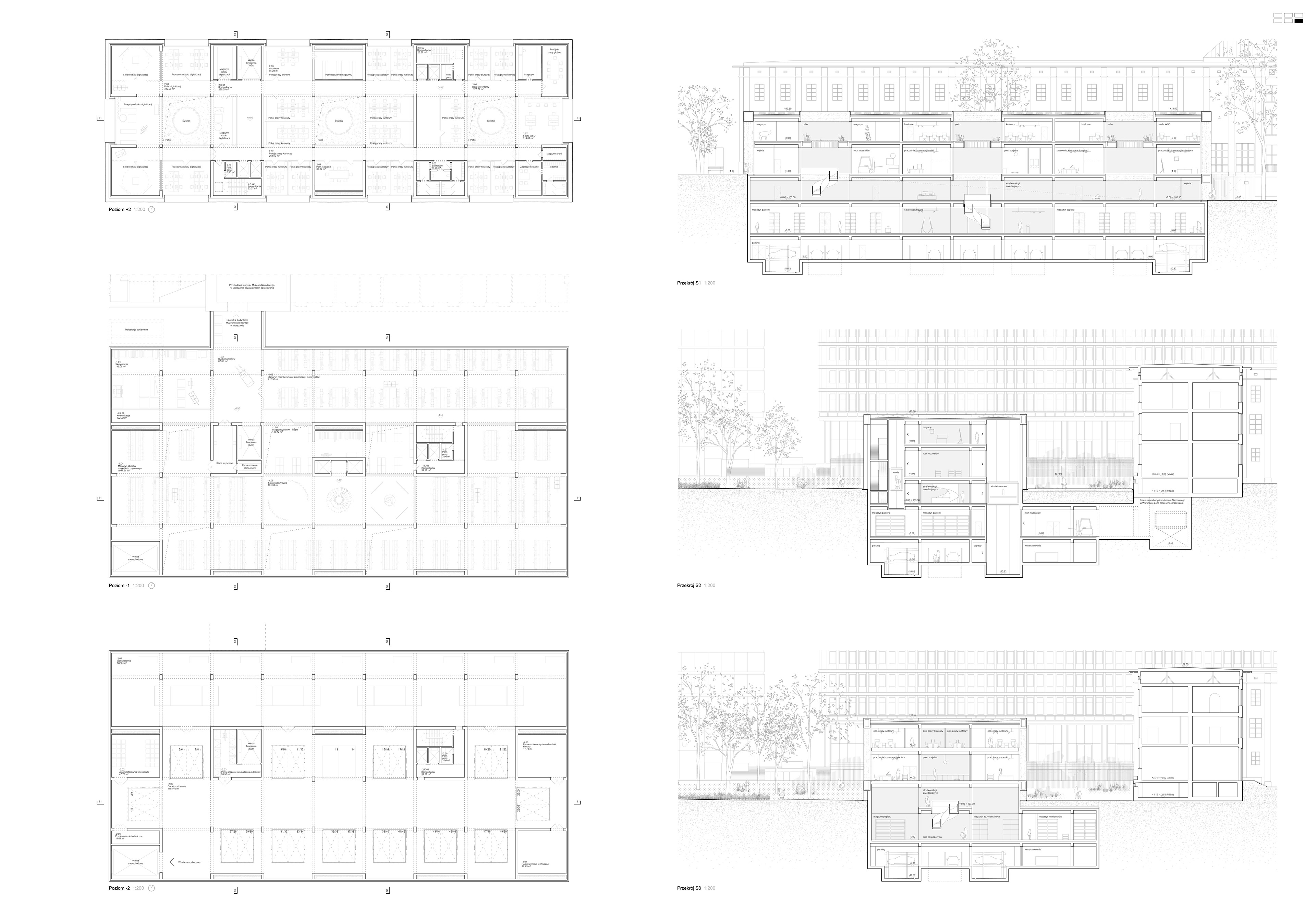
"New Conservation and Storage Center of the National Museum in Warsaw"
Architects: P2PA
Visualizations: VA-ARTS
Poland, Warsaw
2022
↑
Back to Top